Blanes Urigoitia Urigoitia Blanes

EMT museo

2025
Museo de transporte

El nuevo Museo de la EMT se concibe como una bisagra urbana que enlaza la ciudad con el parque lineal de Madrid Río. Elevado y permeable en todas sus orientaciones, el edificio abre su presencia hacia el gran eje peatonal y verde del Manzanares, invitando a un tránsito continuo entre arquitectura y paisaje.

Su fachada, atenta a las variaciones del entorno, actúa como un diafragma que hace levitar el volumen y establece un diálogo vivo entre la memoria del transporte madrileño y quienes lo recorren. Como la ventana de un vagón en movimiento, el edificio propone una experiencia en la que interior y exterior se acompañan mutuamente.

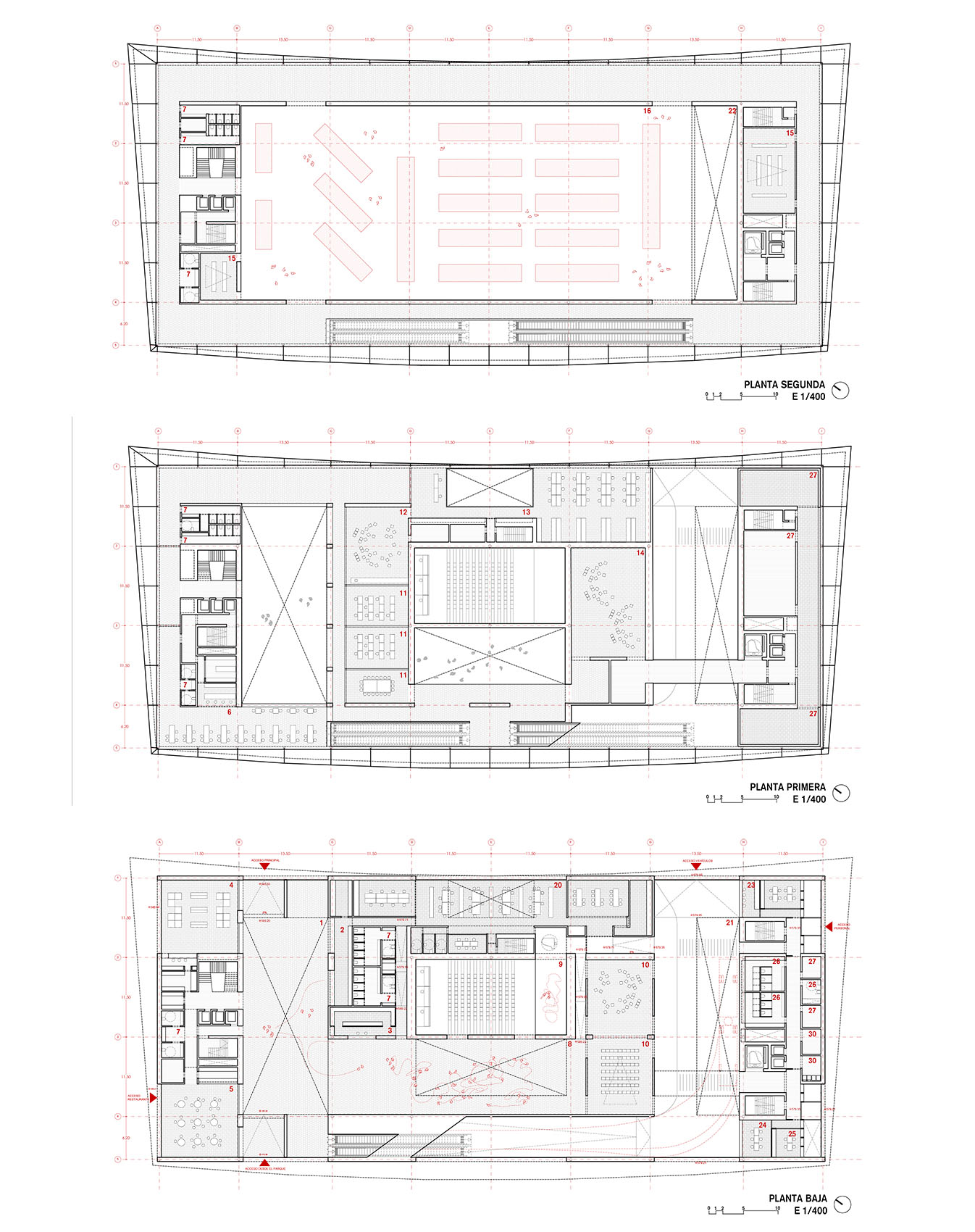
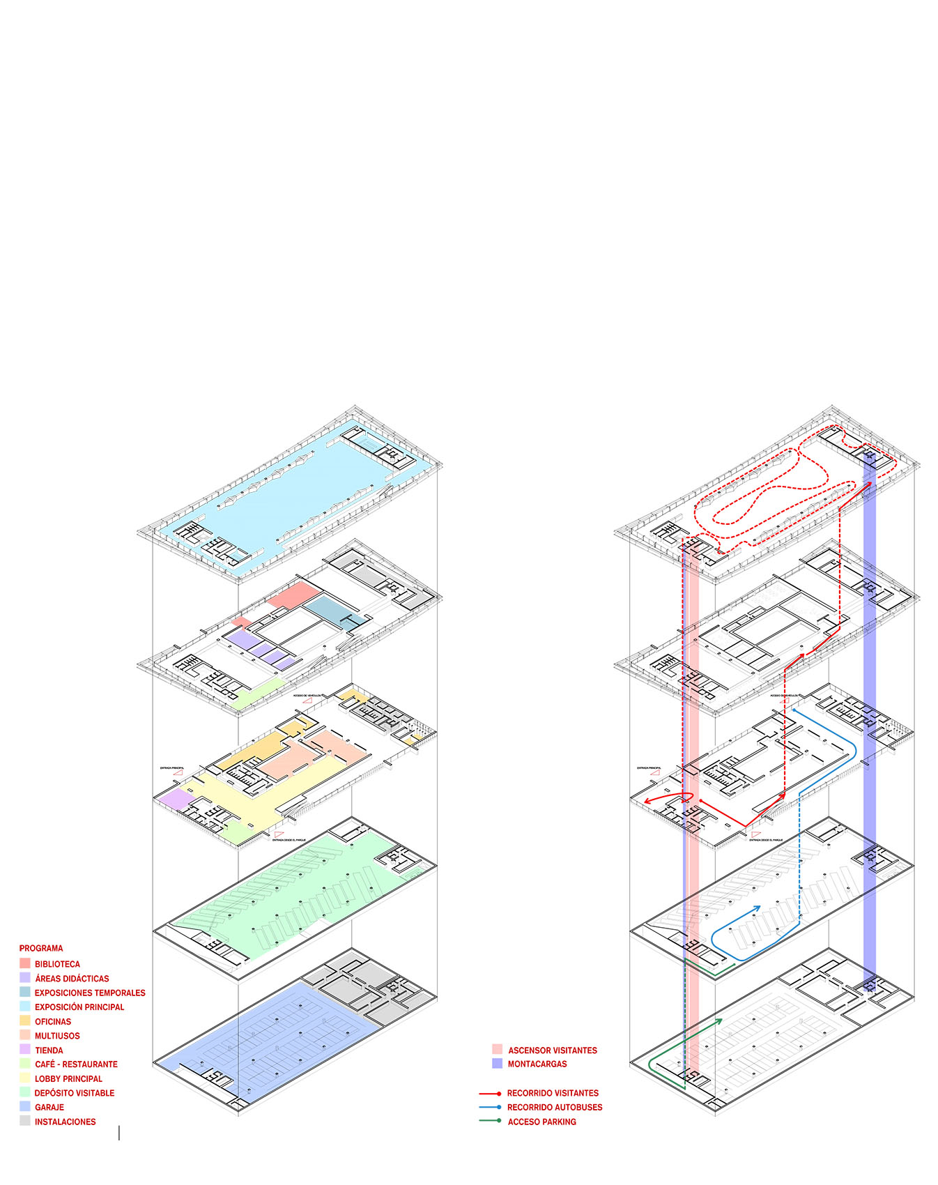
La pieza se organiza mediante dos circulaciones diferenciadas: la peatonal, que asciende desde el noreste a través de un corredor suave y accesible, y la del autobús, que accede desde el sureste, atraviesa el museo y desciende hacia un depósito visitable. Ambos recorridos —uno en ascenso, otro en descenso— confluyen en la sala principal, donde una caja oscura se inserta en el perímetro del edificio y activa un espacio intermedio que responde a la fachada y al paisaje. Allí, el relato expositivo encuentra su anclaje: una arquitectura que, como todo transporte en superficie, avanza en constante diálogo con el territorio que la acompaña.

EMT museoConcurso público
Programa
Museo de transporte
Localización
Madrid, España
Fecha
2025
Cliente
Empresa Municipal de Transportes de Madrid (EMT)
Estado
Concurso
Equipo
Blanes Urigoitia arquitectura + John Dent